works
施工事例
2025年10月31日
愛犬と駆け周る庭
ウッドデッキとドックランがある庭敷地内を走らせたい。
リビング前はくつろぎの空間が欲しい。
勝手口では愛犬をやすませる場所、雨の日の洗濯物干し、自転車収納
というご要望をお持ちでした。

-
Before
お問い合わせ時の状況です。
共働きで忙しく、手入れをする時間があまりない。とのことでした。

-
After
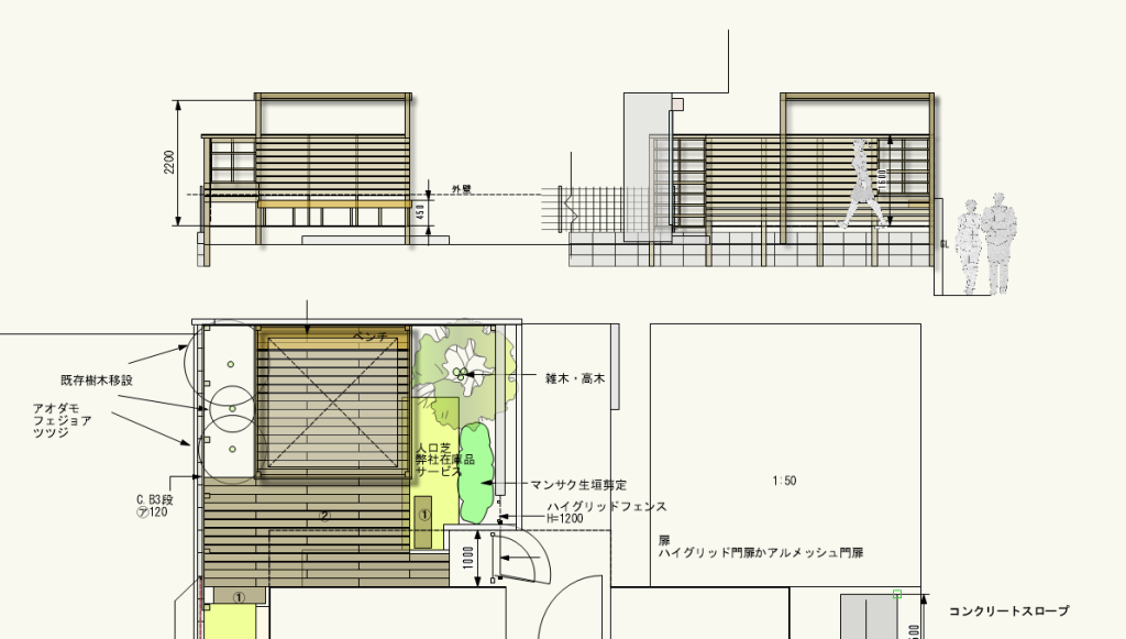
リビング前の計画
フェンス、門扉は愛犬が飛びださない高さ、リビングよりフラットなデッキにベンチを造りました。

施工前の景石で土留めをした盛土は手入れできずじまいでした。

大きくなった植栽は管理に困っています

景石、盛土、壊れていた隣地アルミフェンスは 撤去しました。

デッキを窓の硬さにすること、土の地盤を考慮すると新たに3段のブロックが必要です。

庭への入り口は愛犬が飛び越えれない高さの門扉を設置しました。

新たな植物もいれて癒されるウッドデッキ空間を作りました。

勝手口(バックヤード)の計画
勝手口の地盤と駐車場に高低差があるのでリフォーム前は階段で上がられていました。
自転車を入れたいとのご要望でスロープを造りました。
テラス屋根でバックヤードを覆い、洗濯物を干し、愛犬が濡れずに休める空間をつくり、雨の日は散歩帰りに足をシャワーで洗い、そのまま室内へ入ります。

経年と共に古くなった選択物干し木製フェンス。



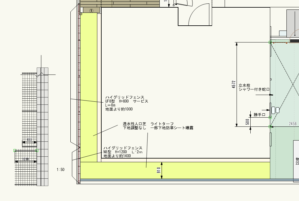
勝手口横の立水栓はシャワー付きで散歩後の愛犬の足を洗い流します。

テラス屋根の下は洗濯物も塗れずに安心。
愛犬も安心しいます。

犬走を人口芝でドッグランを造る
犬走をコンクートでされる方が多くおられると思います。
防草対策と歩きやすさを考慮すると最適化と思われますが、意外にきずかれない盲点があります。
それは暑さです。
この猛暑、外壁は日光を浴びて熱くなります。
それと同様にコンクートも熱を保持するので熱くなります。
犬走は愛犬のためにも、家の為にもコンクート以外の熱を保持しない材質がお勧めです。
本物件は愛犬の足を考慮して、柔らかい素材=コンクリート以外の人口芝を考慮しました。

犬走部分の人口芝の先手基準
周りの偏りあまり見えないのでコストダウンにもつながる物
愛犬がスピードをあげて走るまっすぐな部分なので毛並みの短い物。
を優先に選定いたしました。
又、愛犬が助走をつけて飛び越える懸念がある部分の境界フェンスは高さを1.8mまでたかくしています。
